Libertad Florida
LIBERTAD es un proyecto pensado y diseñado desde su habitabilidad. Un desarrollo habitacional cómodo y placentero, teniendo en cuenta también la cercanía del centro comercial con negocios varios (supermercados, bancos, restaurantes, etc.) acceso rápido a Panamericana, a dos cuadras una estación de ferrocarril y la proximidad de varias líneas de colectivos.
Es un edificio proyectado en planta baja y dos pisos. Cuenta con jardines y terrazas propias, y cocheras individuales.
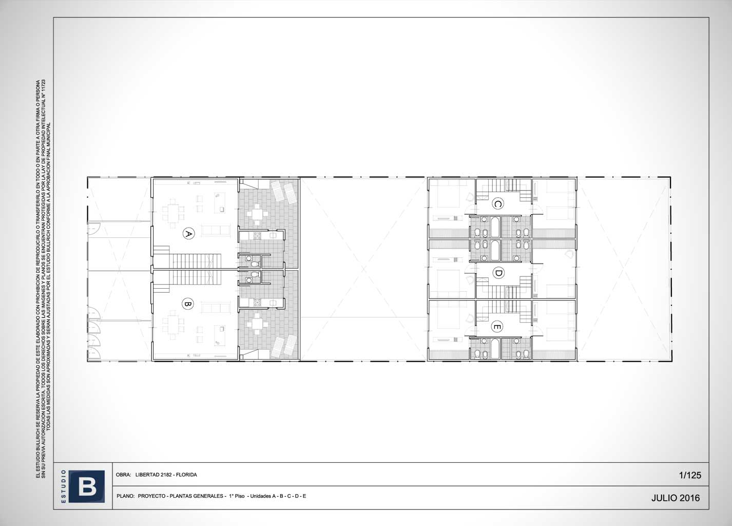
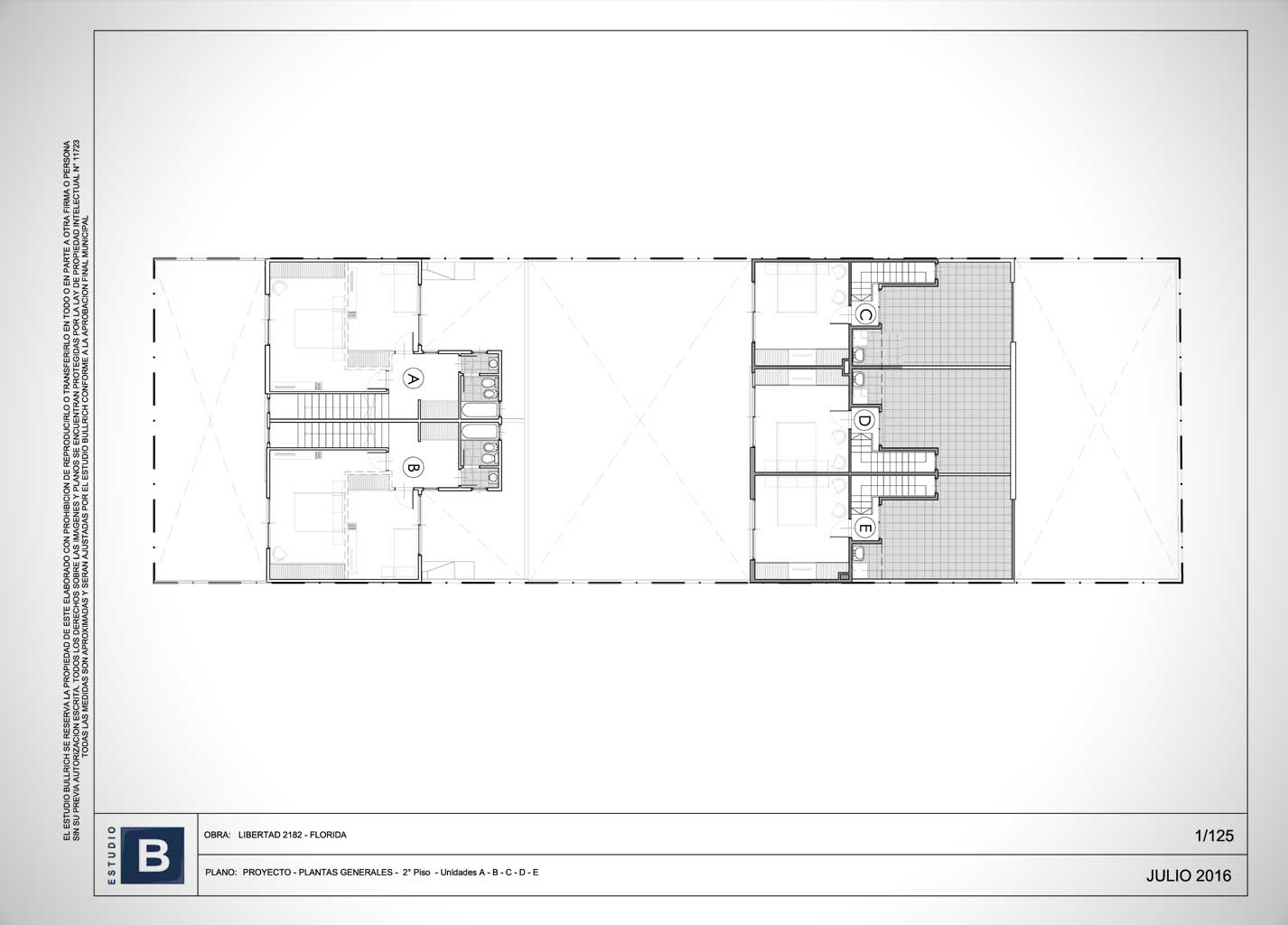
El proyecto contempla 2 departamentos “tipo casa” de 3 ambientes con jardin y terraza propia con parrilla y 3 casas “tipo triplex” de 4 ambientes con jardin con parrilla y terraza con lavadero independiente. Cada unidad tiene cochera propia en la planta baja del complejo.
Info
- Fecha: 2016
- Nombre: Libertad Florida
- Estado: Finalizada
- Lugar: Libertad 2182 Ver Video

Vista Frontal
Fachada Día

Vista Frontal
Fachada Noche

Departamentos
Contrafrente (Bloque 1) Día

Departamentos
Contrafrente (Bloque 1) Noche

Departamentos
Contrafrente (Bloque 1) Noche

Departamentos
Frente (Bloque 2) Noche

Departamentos
Contrafrente (Bloque 2) Noche

Planos
Planta General P.B.

Planos
Planta General 1° Piso

Planos
Planta General 2° Piso

Planos
Unidades Planta Baja, 1° y 2° Piso - 3 Ambientes con Cochera, Jardín y Patio (Depto. "A")

Planos
Unidades Planta Baja, 1° y 2° Piso - 3 Ambientes con Cochera, Jardín y Patio (Depto. "B")

Planos
Unidades Planta Baja, 1° y 2° Piso - PH 4 Ambientes con Cochera, Jardín y Terraza (Depto. "C")

Planos
Unidades Planta Baja, 1° y 2° Piso - PH 4 Ambientes con Cochera, Jardín y Terraza (Depto. "D")

Planos
Unidades Planta Baja, 1° y 2° Piso - PH 4 Ambientes con Cochera, Jardín y Terraza (Depto. "E")
